| Performance | |||
| Atmosphere | Partial-pressure vacuum sintering | ||
| Maximum Temperature | 1400 °C | 2552 F | |
| Physical | |||
| External Dimensions (HxDxW) | 210x110x84 cm | 83x43x33 inches | |
| Weight | ~530 kg | ~1170 lbs | |
| Retort Furniture | Single or double shelf configuration (see Figure 3-1) | ||
| Ventilation | ¾” ID hose vented to exterior of building | ||
| Binder Management | Two stage trapping system | ||
| Fail Safes | Overtemperature protection, backup battery system for safe shut down in power failure | ||
| Electrical | |||
| Power Grid Connection | Three Phase | ||
| Frequency | 50/60 Hz | ||
| Supply Voltage | 200-250 V (CSA) | 400 V (CE) | |
| Current Rating | 35 A | 25 A | |
| Required receptacle | NEMA 15-50 | IEC 60309 32-6h | |
| Power Consumption | 60kWh (12hr cycle) to 100kWh (30hr cycle)) | ||
| Gas | |||
| Gas Types | Argon, Argon with 3% Hydrogen*, Nitrogen | ||
| Gas Connection | CGA-580 connection to Argon gas cylinder | ||
| Gas Consumption | ~400L (12hr cycle) to ~900L (30hr cycle) [10-20 sintering runs per T-sized gas bottle] | ||
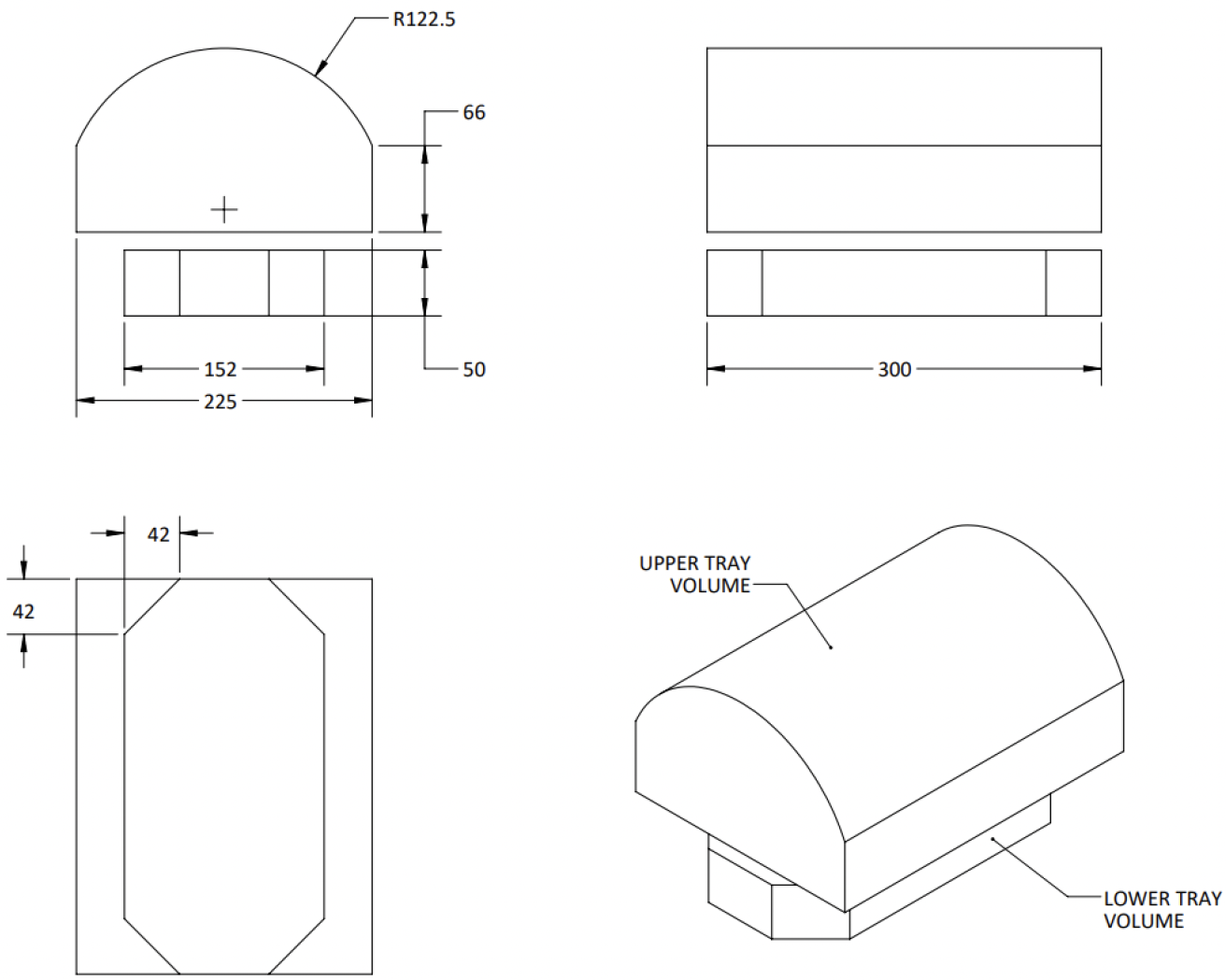
The Rapidia Conflux 1 Furnace features an adjustable tray system that can be configured in two ways to optimize the utilization of the retort hot zone depending on part geometry. The two shelf configuration maximizes total area for smaller parts. The single shelf configuration maximizes height, width, and length for larger parts. Details of these configurations are given below.
NOTE: Use green dimensions when determining how to fit your parts on the shelves.
|
Height [inches], mm |
Width [inches], mm |
Length [inches], mm |
|
| Two Shelf Configuration | |||
| Top shelf |
edges: [2.60], 66 R: 122.5 |
[8.85], 225 | [11.81], 300 |
| Bottom shelf | [1.96], 50 | [5.98], 152 | [11.81], 300 |
| Single Shelf Configuration | |||
| Only Shelf |
edges [6.97], 177 R:122.5 |
[5.98], 152 | [11.81], 300 |
a) Two Shelf
![]()
|
![]() |
|
b) Single Shelf
![]()
|
![]()
|
|